甲府市上曽根町 平屋建て中古住宅

所  在山梨県甲府市上曽根町字町田3031番、3032番1
権  利所有権
地  目宅地
地  積2筆合計1321.77㎡(399.8坪)公簿
家屋番号3031番
種  類居宅
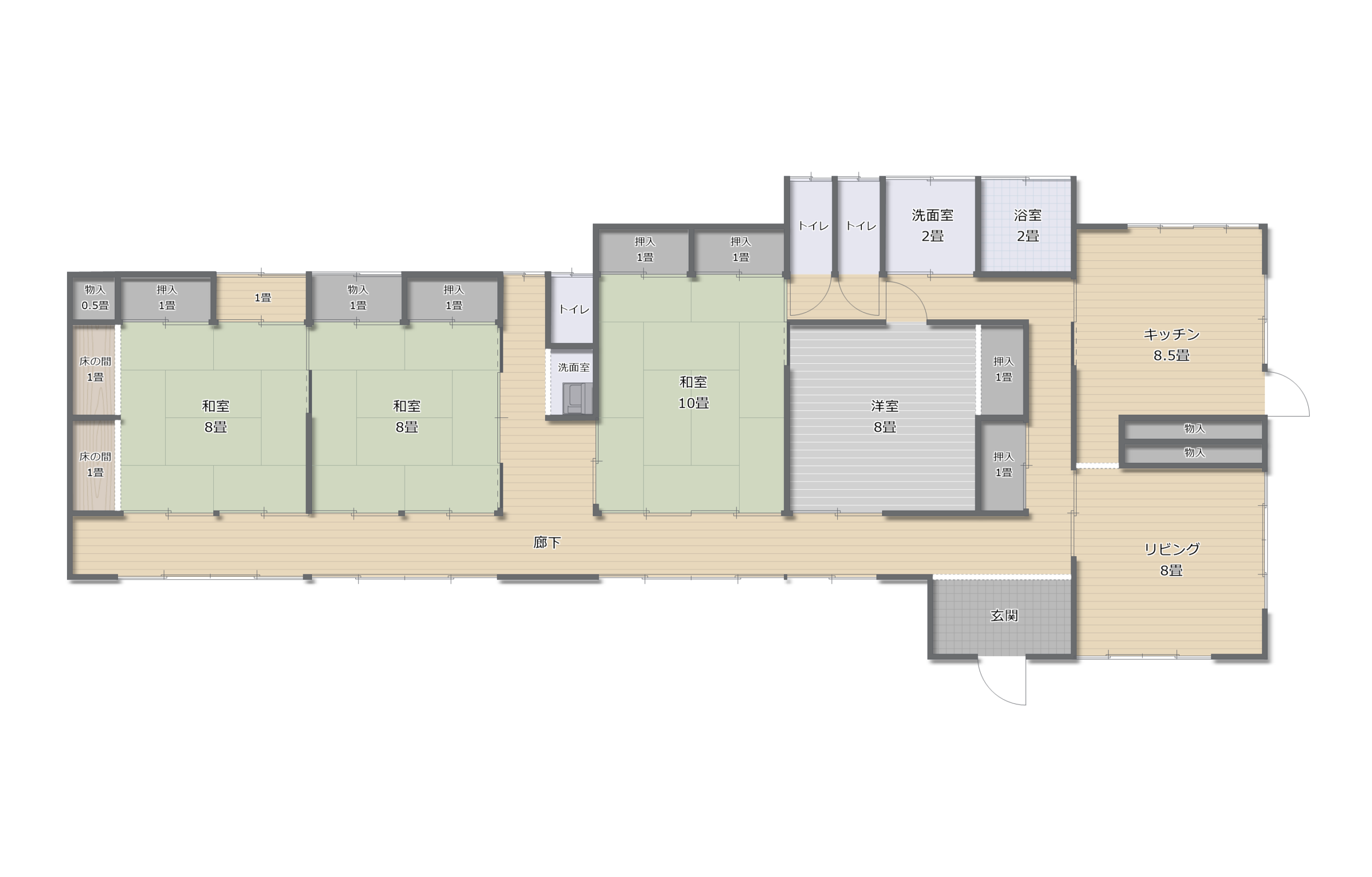
構  造木造瓦葺き平屋建
床面積157.36㎡(47.6坪)
築年数昭和48年新築(築52年)、昭和57年増築
付属建物①倉庫、土蔵造瓦葺2階建、1階23.18㎡、2階21.16㎡
②倉庫、軽量鉄骨造スレート葺平屋建、49.63㎡
③倉庫、木造セメント瓦葺平屋建、33.05㎡
坪  価
総  額¥19,800,000円
接  道南側幅員約4m道路に約36m接道
都市計画非線引き区域
用途地域用途地域の指定をしない区域
建ぺい率60%
容積率200%
設  備上下水道
現  況居住中
引き渡し相談
学  区甲府市立中道北小学校まで 徒歩9分、約600m
甲府市立笛南中学校まで 徒歩28分、約2km
環  境セルバ笛吹境川店まで 約3.4m
ファミリーマート甲府南インター店まで 約1.5km
取引形態媒介
備  考甲府市洪水ハザードマップ 浸水想定水深5.0m~10.0m未満区域
甲府市排水機場内水ハザードマップ(柏排水機場)浸水0.5~3m区域
掲載日2026年1月22日
資  料公図 案内図 間取り 各階平面図 カタログ